SP15
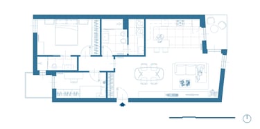
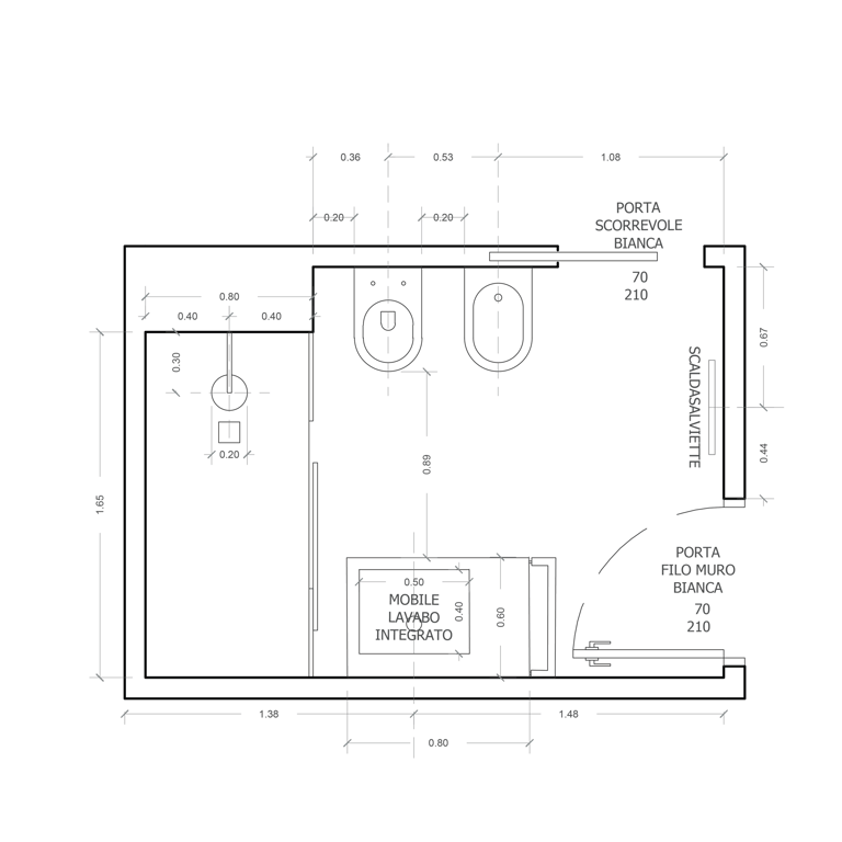
Un ampio e luminoso open-space e uno stile moderno e lineare era l'obiettivo da raggiungere per questa ristrutturazione. Attraverso pochi e semplici gesti di abbattimento dei tramezzi è stato possibile ottenere spazi ben definiti e continui. L'ampia cucina con penisola comunica direttamente con la zona living e pranzo, quest'ultima caratterizzata da una parete attrezzata per la TV su misura. E' stato inoltre ricavato un vano lavanderia con accesso diretto al bagno principale, e modificato l'accesso al secondo bagno direttamente dalla camera matrimoniale.
Ristrutturazione interni | Opicina | 2021 | Privato
























