ST2
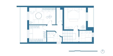
Il progetto prevede la ristrutturazione di una villetta con uno stile elegante e moderno dai toni caldi realizzato accostando tinte tortora al legno e al marmo. L'ingresso è stato collegato all'ampio open-space della zona giorno per ottenere uno spazio ampio e accogliente, caratterizzato dai giochi di luce e da arredi semplici dalle linee morbide.
La camera matrimoniale è caratterizzata da una decorazione a boiserie dietro al letto che riprende l'ingresso, in modo da creare una continuità di stile.
Ristrutturazione interni | Staranzano | 2022 | Privato






















